Villa PIERROT (150 m²) à construire sur Lot A à Sart-st-Laurent
SART-ST-LAURENT (lot A + villa PIERROT en clé-sur-porte)
5070 - rue la Marlagne (face au n°33) 395.297,16 € hors frais - 464.919,56 € prête à vivre.
Une jolie villa "4 façades" de 74,80 m² bâtis au sol, soit 140,80 m² au total. Nouvelle construction aux normes QZen. PEB A. Idéalement située à la campagne mais pas loin de Namur. EN BAS DE PAGE, TELECHARGER LE PLAN.
| Villa PIERROT (150 m²) en clé-sur-porte. Constructeur : T.PALM SA | 296.297,16€ | hors TVA. Prix informatif. |
| Terrain - 906m² | 99.000€ | hors frais de notaire. (Lot A) |
| TOTAL hors frais et hors TVA | 395.297,16€ | le terrain et la construction. Prix informatif. |
| TVA 21% sur la construction | 62.222,40€ | |
| Provision “frais” | 7.400€ | calculée pour un.e primo-propriétaire (droits = 3%) |
| TOTAL provision frais et TVA incluses | 464.919,56€ |
|---|
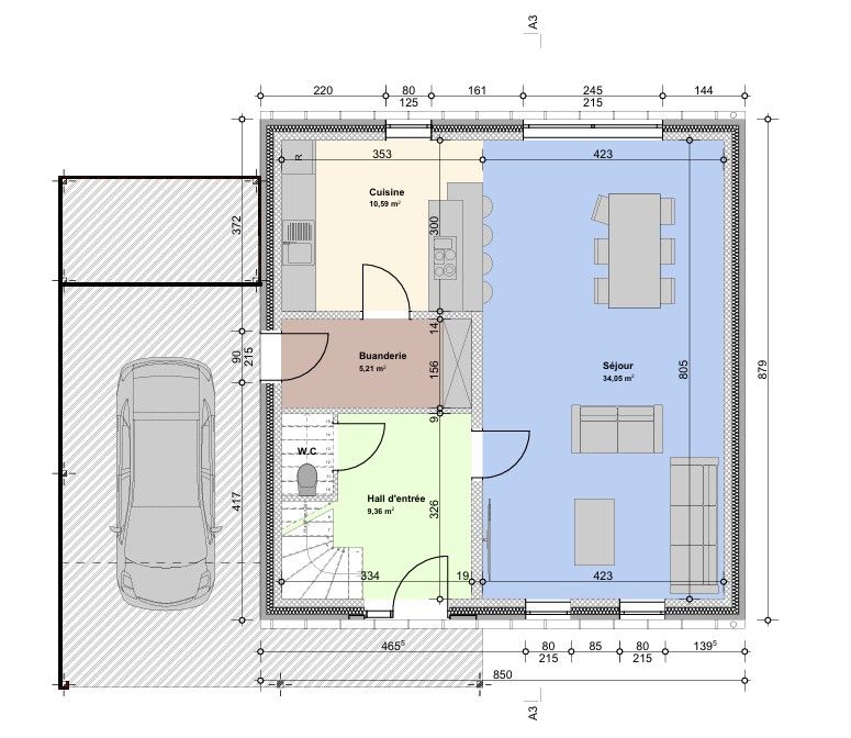
Rez-de-chaussée : hall, wc, bureau, buanderie, living, cuisine.
Etage : hall, nuit,
Combles : grenier isolé, 200 kg/m²; accessible par escalier escamotable.
Extérieur : carport (non compris).
Construction traditionnelle : blocs + isolant + briques
Hourdis béton armé.
Charpente industrialisée.
Couverture en tuiles plates.
Isolant de toiture : 20 cm.
Panneaux photovoltaïques. ~6.000 W/c
Menuiserie extérieure en PVC, extérieur couleur et intérieur blanc. Avec DV super isolant.
Chauffage : pompe à châleur Vaillant.
Installation électrique complète.
Ventilation mécanique contrôlée C+.
Rez entièrement carrelé.
SDB et SDD carrelées.
Parquet dans les chambres.
Escalier en hêtre.
Portes intérieures tubulaires.
Cuisine équipée.
Carport non compris.
(liste pouvant être soumise à modifications)
Surface au sol : 74,80 m²
Surface totale (hors grenier) : 149,60 m²
Grenier 200 kg/m² accessible par escalier escamotable.
Living : 34,05 m²
Cuisine ouverte : 10,59 m²
Buanderie : 5,21 m²
Chambre 1 : 14,05 m²
Chambre 2 : 13,05 m²
Chambre 3 : 11,57 m²
SDB : 9,07 m²
SDD : 2,85 m²
Grenier isolé.
Votre futur revenu cadastral
Combien et quand ?
Pour votre nouvelle construction le revenu cadastral n'est pas encore fixé. Dans les 30 jours de l'occupation de votre nouvelle construction, vous devrez prévenir l'administration du cadastre. Cette administration vous signifiera le montant de votre revenu cadastral. C'est l'année qui suit cette signification que vous paierez pour la première fois votre précompte immobilier.
Pourquoi investir dans les briques ?
Pour améliorer vos revenus
- À moyen ou à long terme, lorsque la charge de votre prêt hypthécaire se fera de moins en moins lourde, votre revenu mensuel s'en verra d'autant augmenté.
Pour sécuriser votre retraite
- Après remboursement de votre ou de vos prêts hypothécaires et en approche de l'âge de la retraite, celle-ci sera bien plus confortable si vous pouvez compter sur des revenus locatifs ou sur du capital si vous décidez de vendre un ou plusieurs de vos immeubles.
Dans l'immédiat : pour payer moins d'impôts
- Votre investissement immobilier vous procurera des avantages fiscaux non négligeables.
- La législation actuelle est très favorable lorsque vous louez un immeuble pour un usage d'habitation privée.
Pour une protection contre l'inflation
- L'inflation érode chaque année la valeur de votre capital financier.
- Les placements bancaires ayant un rendement inféfieur à l'inflation, votre capital se dégrade un peu plus, au fur et à mesure des années qui passent
- par contre, un revenu locatif est indexé.
- tenant compte du fait que la mensualité de votre prêt hypothécaire peut être fixe durant toute la durée de celui-ci et que les taux d'intérêt sont actuellement très bas, tant votre capital immobilisé que votre revenu s'améliorent au lieu de se dégrader.
Pour réaliser une plus-value
- les prix de l'immobilier résidentiel augmentent chaque année.
- La Région Wallonne doit faire face à un "défi démographique" : il y a une pénurie de logement. Cette pénurie est une pression supplémentaire sur les prix de l'immobilier.
- Résultat : au terme du paiement de votre investissement, vous pourrez bénéficier d'une plus-value non négligeable en cas de revente.
Simulateur de crédit
Vous désirez connaître le montant que vous pouvez emprunter ? Faites une simulation de votre prêt hypothécaire ! En à peine quelques minutes, vous obtenez une ébauche de votre solution de financement. Valeur du bien, durée du crédit, à quel taux, calcul des intérêts, … Nombreux sont les éléments qu’il faut prendre en compte en cas d’emprunt hypothécaire. Afin de vous faciliter la tâche, nous vous encourageons vivement à simuler votre prêt pour pouvoir avancer dans votre projet de vie.
Simulateur de crédit







