Villa SIZET (160 m²) à construire sur Lot B à Sart-st-Laurent
SART-ST-LAURENT (Lot B + villa SIZET en clé-sur-porte)
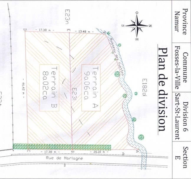
5070 - rue la Marlagne (face au 33) 405.167,03 € hors frais - 477.602,11 € prête à vivre.
Une villa spacieuse et moderne, parfaitement isolée et ventilée, avec des matériaux et des finitions de grande qualité. Idéalement implantée, en retrait de la voirie, sur un terrain exposé plein sud. Situation géographique intéressante proche de Namur et du centre commercial de Fosse-la-Ville.
| Villa SIZET (160 m²) prête à vivre. Constructeur : T.PALM SA | 310.167,03€ | Hors TVA. Prix informatif. |
| Terrain - 801m² | 95.000€ | Hors frais de notaire. (Lot B) |
| TOTAL hors frais et hors TVA | 405.167,03€ | le terrain et la construction. |
| TVA 21% sur la construction | 65.135,08€ | |
| Provision “frais” | 7.300€ | calculé pour un.e primo-propriétaire (droits=3%) |
| TOTAL provision frais et TVA incluses | 477.602,11€ |
|---|
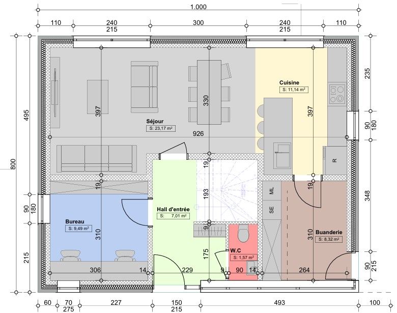
Rez-de-chaussée : hall, wc, living, cuisine ouverte, buanderie, bureau.
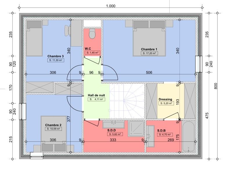
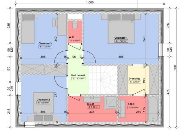
Etage : hall de nuit, 3 chambres dont 1 suite parentale avec dressing et SDB, 2 chambres, SDD.
Construction traditionnelle : blocs + isolant + briques.
Hourdis béton armé.
Charpente industrialisée.
Couverture en tuiles plates.
Isolant de toiture en fibre de bois.
Panneaux photovoltaïques. 6000 W/c.
Menuiserie extérieure en PVC, extérieur couleur et intérieur blanc. Avec DV super isolant.
Installation électrique complète.
Ventilation mécanique contrôlée C+.
Pompe à chaleur VAILLANT.
Chauffage sol au rez.
Rez entièrement carrelé.
SDB et SDD carrelées + 10 m² mural.
Parquet dans les chambres.
Escalier en hêtre.
Portes intérieures tubulaires.
Cuisine équipée.
(liste pouvant être soumise à modifications)
Surface au sol : 80 m²
Surface totale : 160 m²
HSC : 4.20 m.
Living : ~23,17 m²
Cuisine ouverte : ~11,14 m²
Bureau : ~9,49 m²
Buanderie : ~8,32 m²
Suite parentale : ~27,10 m²
Chambre 2 : ~10,59 m²
Chambre 3 : ~11,30 m²
Votre futur revenu cadastral
Combien et quand ?
Pour votre nouvelle construction le revenu cadastral n'est pas encore fixé. Dans les 30 jours de l'occupation de votre nouvelle construction, vous devrez prévenir l'administration du cadastre. Cette administration vous signifiera le montant de votre revenu cadastral. C'est l'année qui suit cette signification que vous paierez pour la première fois votre précompte immobilier.
Pourquoi investir dans les briques ?
Pour améliorer vos revenus
- À moyen ou à long terme, lorsque la charge de votre prêt hypthécaire se fera de moins en moins lourde, votre revenu mensuel s'en verra d'autant augmenté.
Pour sécuriser votre retraite
- Après remboursement de votre ou de vos prêts hypothécaires et en approche de l'âge de la retraite, celle-ci sera bien plus confortable si vous pouvez compter sur des revenus locatifs ou sur du capital si vous décidez de vendre un ou plusieurs de vos immeubles.
Dans l'immédiat : pour payer moins d'impôts
- Votre investissement immobilier vous procurera des avantages fiscaux non négligeables.
- La législation actuelle est très favorable lorsque vous louez un immeuble pour un usage d'habitation privée.
Pour une protection contre l'inflation
- L'inflation érode chaque année la valeur de votre capital financier.
- Les placements bancaires ayant un rendement inféfieur à l'inflation, votre capital se dégrade un peu plus, au fur et à mesure des années qui passent
- par contre, un revenu locatif est indexé.
- tenant compte du fait que la mensualité de votre prêt hypothécaire peut être fixe durant toute la durée de celui-ci et que les taux d'intérêt sont actuellement très bas, tant votre capital immobilisé que votre revenu s'améliorent au lieu de se dégrader.
Pour réaliser une plus-value
- les prix de l'immobilier résidentiel augmentent chaque année.
- La Région Wallonne doit faire face à un "défi démographique" : il y a une pénurie de logement. Cette pénurie est une pression supplémentaire sur les prix de l'immobilier.
- Résultat : au terme du paiement de votre investissement, vous pourrez bénéficier d'une plus-value non négligeable en cas de revente.
Simulateur de crédit
Vous désirez connaître le montant que vous pouvez emprunter ? Faites une simulation de votre prêt hypothécaire ! En à peine quelques minutes, vous obtenez une ébauche de votre solution de financement. Valeur du bien, durée du crédit, à quel taux, calcul des intérêts, … Nombreux sont les éléments qu’il faut prendre en compte en cas d’emprunt hypothécaire. Afin de vous faciliter la tâche, nous vous encourageons vivement à simuler votre prêt pour pouvoir avancer dans votre projet de vie.
Simulateur de crédit



